PISO EN ALQUILER REFORMADO Y AMUEBLADO A ESTRENAR EN CALLE LIMÓN
  • Tipo: Piso
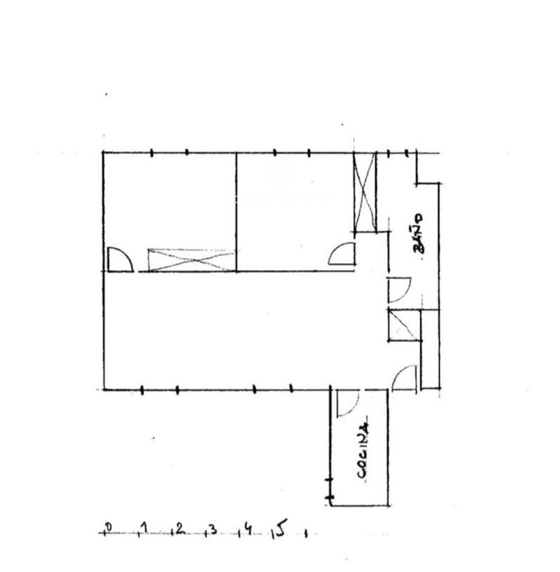
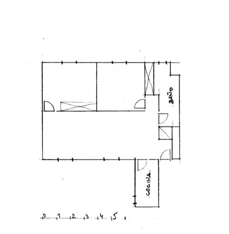
  • m2 construidos: 95 m2
  • m2 útiles: 72 m2
  • Habitaciones: 2
  • Baños: 1
  • Calefacción: Individual de Gas
  • Suelo: Tarima flotante
  • Cocina Amueblada:
  • Aire acondicionado:
  • Calificación Energética: (D) VER
Ref: 1431 | Centro

SOMOZA PROPERTIES presenta magnífica vivienda para alquilar ubicada en el corazón de Madrid en uno de los barrios más solicitados de la capital, en un precioso edificio clásico. 

La vivienda tiene 95 m2 construidos distribuidos de la siguiente forma: Entramos directamente a un amplio salón comedor muy luminoso, decorado con elegancia y detalle, en el recibidor de acceso tenemos un amplio armario, desde el salón podemos acceder a la cocina independiente, completamente equipada con todo lo necesario para entrar a vivir, vajilla, menaje, cafetera. El resto de la vivienda se distribuye en dos dormitorio dobles, ambos con gran armario  empotrado, y un espacioso baño con plato de ducha.

La vivienda cuenta con aire acondicionado de bomba frío-calor y radiadores de calefacción individual para mantener una temperatura agradable en todo momento. 


- Condiciones económicas:

• Renta mensual: 2.000 €/mes

• Fianza: 1 mes de fianza (2.000 €)

• Deposito: 1 mes de deposito (2.000 €)

• IBI y gastos de comunidad: a cargo del propietario

• Resto de suministros: a cargo del inquilino

• Duración del contrato: Contrato de arrendamiento de temporada


- Servicios cercanos:

Restaurantes, supermercados, teatros, museos.


- Transporte público:

PARADA DE METRO: Noviciado  (L2), Ventura Rodríguez (L3), Plaza de España (L3 y L10)

AUTOBUSES: 1,2,3, 44,133, 138, 147, 001, 002



Para mas información y visitas no dude en consultar con SOMOZA PROPERTIES. Estaremos encantados de atenderle y asesorarle en todo lo necesario.

Somoza Properties le ayudará durante todo el proceso gracias al servicio profesionalizado y de calidad que ofrecemos a nuestros clientes. La TRANSPARENCIA y la CONFIANZA es la base de nuestros valores. 

2.000 €/mes
Solicitar información

Si desea más información sobre esta propiedad, por favor, rellene el formulario: